500 Triệu - Nhà 1 Trệt 100m2 - Từ ngoài vào trong
500 Triệu - Nhà 1 Trệt 100m2 - Từ ngoài vào trong, 53668, Nguyễn Thu Hương Blog MuaBanNhanh
Các mẫu thiết kế này đều đã thi công xong và gần sát nhất với thực tế, cùng với chi phí thi công đã hoàn thiện nên hoàn toàn chính xác. Các Mom yên tâm tham khảo.
Nhân tiện, trong bài viết và comment, em chỉ nêu địa điểm công trình chứ không nêu tên Gia chủ, Cty thi công hay KTS thiết kế nhé.
Thôi không dài dòng nữa, vào vấn đề vậy. Lưu ý nhà này đổ móng đàng hoàng chứ không như nhà cấp 4.
- Địa điểm Long Điền - Tỉnh Bà Rịa Vũng Tàu
- Chi phí xây dựng 500 Triệu
- 1 Trệt sau này sẽ lên tầng
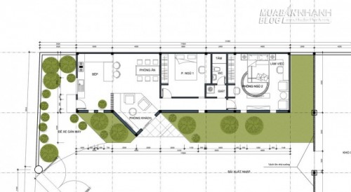
- Bếp - Khách - WC chung - 2 Phòng ngủ
- Phong thủy
- Phong cách hiện đại đơn giản.
Tổng kết chi phí:
- Tổng chi phí thiết kế 20 Triệu
- Chi phí xây dựng 450 Triệu
- Trong đó bao gồm 130 triệu nội thất.
Hình ảnh thiết kế:
Mặt Bằng thiết kế kiến trúc: ![]()
Phối cảnh ngoại thất:![]()
Phối cảnh nội thất :Phòng Khách - Bàn Ăn - Bếp ![]()
![]()
![]()
Phòng Ngủ Phụ
![]()
![]()
Phòng Ngủ Master:
![]()
![]()
Theo Webtretho
Nguyễn Thu Hương Chưa xác định sản phẩm bán chạy, tiêu điểm.